一种液压圆钢剪切机发明
发布时间:2020-04-10 15:06:00
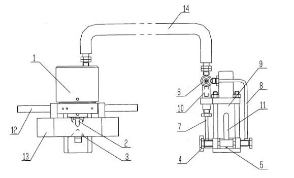
无锡市惠泽染色机生产厂家发明公开了一种液压圆钢剪切机,包括剪断器部分和控制器部分,其特点是所述剪断器部分包括剪断器油缸、主动刀头和固定刀头;所述控制器部分包括进油口、油路控制器、调节阀门和控制器油缸,油路控制器通过出油管和回油管与调节阀门连接,调节阀门通过高压油管与剪断器油缸连接,采用液压作为动力,动作过程快捷且噪音较小,方便圆钢的下料,剪切过程中不会产生金属碎屑,适用于恶劣环境场合,剪切部位安装有防护罩,操作更加安全。
1、一种液压圆钢剪切机,包括剪断器部分和控制器部分,其特点是所述剪断器部分包括剪断器油缸、主动刀头和固定刀头;所述控制器部分包括进油口、油路控制器、调节阀门和控制器油缸,油路控制器通过出油管和回油管与调节阀门连接,调节阀门通过高压油管与剪断器油缸连接。
2、 其特征是所述调节阀门上安装 有与整个油路连通的安全阀。
3、其特征是在主动刀头和固定刀 头的位置还安装有防护罩。
4 、其特征是所述进 油口可连4妄油泵作为动力源。
图示:1、剪断器油缸;2、主动刀头;3、固定刀头;4、进油口; 5、油路控制器; 6、调节阀门;7、回油管;8、出油管;9、控制器油缸;10、安全阀;11、控 制把手;12、防护罩连杆;13、防护罩;14、高压油管。
来源声明:以上内容部分(包含图片、文字)来源于网络,如有侵权,请及时与本站联系(+86-15190290101)。
如没特殊注明,文章均为惠泽染机公司原创


当前位置: